BZ型定柱式旋臂起重机说明书
发布时间:2019/03/08
BZ型定柱式旋臂起重机说明书
一概述
一概述
BZ型定柱式旋臂起重机是根据用户需要设计的专用起重设备,具有结构新颖、合理、简单、操作使用方便、回转灵活、作业空间大等优点,是节能高效的物料吊运装备。可广泛利用于厂矿、车间的生产线、装配线和机床的上下活及仓库、码头等场合的重物吊运。
本机有立柱、回转旋臂及环链电动葫芦等组成。立柱下端固定于混泥土基础上,旋臂回转,可根据用户需求进行回转。回转部分分为手动回转和电动回转(摆线针轮减速机安装与上托板或者下托板上带动转管使旋臂回转)。环链电动葫芦安装在旋臂轨道上,用于起吊重物。
二.主要技术参数及尺寸
1.主要技术参数
2.外形尺寸:
| 额定起重量( t) | 0.25、0.5 、1、2、3、4、5 |
| 起重高度( m) | 2、2.5 、3、3.5 、4、4.5 、5、5.5 、6 |
| 起升速度( m/min) | 8/2、4/1 、10/2.5 、5/1.25 、2.6/0.7 |
| 运行速度(m/min) | 14 |
| 最大回转半径 | 2、3、4、5、6 |
| 回转角度 | 度≤360° |
| 回转速度 | 手动或0.8r/min (电动) |
| 地脚尺寸(另附) |
2.外形尺寸:

3.环链电动葫芦的性能参数及尺寸:
见附带的电动葫芦《使用维护说明书》。
见附带的电动葫芦《使用维护说明书》。
三、结构及操作
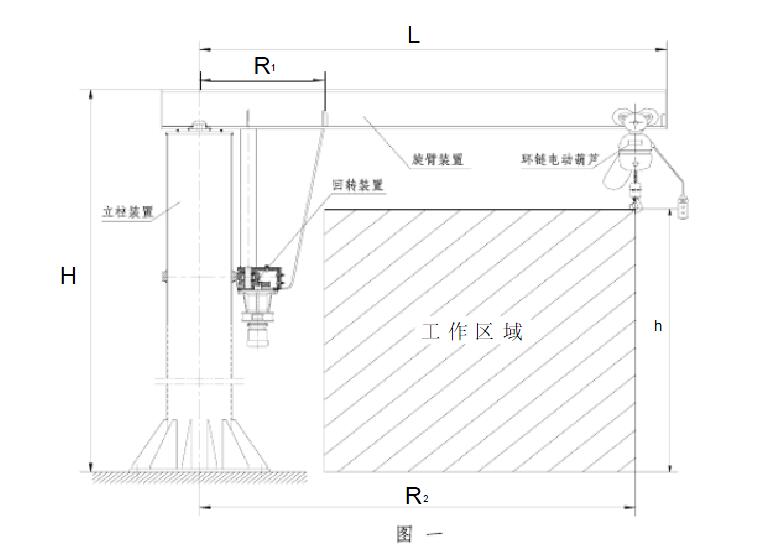
本机主要由旋臂装置、立柱装置、回转装置及环链电动葫芦四大部分组成。(见图一)
环链电动葫芦有起升和在横梁上往返运行的功能。
旋臂梁可由回转装置上的的减速机带动滚轮进行回转运动。
电器部分见附图:电气原理及电气接线图。电器控制箱安装在环链葫芦上。
本机操作通过手电门按钮实现。手电门有八个按钮,分别控制快升、快降、慢升、慢降、左右回转及葫芦小车的水平前后行走。
注意:
1. 操作时不得同时按下快慢按钮和同一电机的反正转按钮
2. 工作时,起重臂下禁止站人。
3. 禁止拖拉起重物。
4. 禁止超负荷起吊。
四、吊运
为运输方便,本机采用拆卸包装,用户根据本书介绍方法自行安装,(见“五”安装)
横梁和立柱的起吊方法见图二、图三。


如需整机吊运见图4

五、安装
安装前,应根据装箱单核对产品和技术文件有无缺少活损失,运输途中引起的旋臂横梁弯扭变形、轴的锈蚀。碰伤等应分别进行校正或还原,另外每半年要对轴、轴承等转动零件进行清洗、润滑。
1. 立柱安装,应使立柱与地面保持垂直,地脚板螺丝应拧紧牢固,不可有松动现象,地板和基础要贴合良好,如配有电动葫芦则基础应预埋电缆和接地设施,预埋电缆从基础中心引出,接地电阻不得大于4欧姆。
2. 旋臂梁安装
旋臂梁安装,请按下列顺序进行。
1) 先将横梁水平吊起。(图二)
2) 将回转装置与旋臂梁连接。(图五)安装减速机。

3) 在旋臂横梁轨道上安装电动葫芦及行走小车。(安装方法严格按环链电动葫芦附带的《使用维护说明书》安装)
4) 在横梁顶端安装C 型轨道。C 型轨道内有自制滑行小车,并应和环链电动葫芦上的电器控制箱在同一侧面上。
5) 将横梁上所有电器进行电线连接安装,并留有长度适当的电源线。(接线见电气原理图及电气接线图)。C型轨道小滑车与电缆分别用绑线捆扎固定。
上述步骤进行完毕,即可进行旋臂梁的整体吊装。
吊装时按图二指定的起吊方法起吊后,使轴对准立柱顶部的轴承孔,滚轮靠在立柱的滚道上缓慢放下。调整适当位置后,通过立柱上部的侧孔,使用垫圈和圆螺母及圆螺母止退垫圈将轴固定好。然后将集电环用一手拖住,通过立柱上部的侧孔,套在横梁轴上。(参见图六)

随后,将横梁周孔内垂下的电线与集电环上的接线柱相接,并将碳刷与立柱下部的电源开关用电线连接,最后把碳刷架固定在立柱内壁上。调整滑片,使之与集电环上的铜圈分别保持良好接触。接通电源,即可试车。
注意:
1.在立柱内安装集电环等部件时, 应采取必要的措施(如预先用绳子捆住),以防止不慎掉入立柱内。
2.如本机在室外安装使用时,需加装可靠的防雨措施。
旋臂横梁与立柱组装装配后应做到①应使滚轮与滚道贴合良好,②回转旋臂能围绕立柱360°灵活转动, ③调整好调整垫片使旋臂横梁端部达到上挠度F≥ R/250(R 为回转半径) 。
六、试车
待全部安装完毕后,即可进行试车。
试车前,将回转减速机内加30#机械油至油标中位(半年换油一次) 。
试车时,先按动各按钮,检查运行方向和手电门指示符号是否相符,如果不符,可调整相符。
空载试验:电动葫芦在横梁上左右运行及上下起升时应运行平稳,旋臂横梁回转时应灵活平稳,并应停止在任何位置上而不致自行滑移,且外端有一定上挠度F≥ R/250(R 为回转半径) 。
额定载荷试验:在额定载荷情况下,起重机吊钩处于离立柱最远端极限位置起吊重物,并进行360°回转(电动或手动) ,试吊15分钟,旋臂最远端下降值应不超过F≥R/125mm 。
为防止操作失灵而发生事故,在本起重机附近必须安装有发生紧急情况时能切断电源的开关,吊车电缆应采用JB678-77规定的YZ-500V中型橡套电缆(其中一根接地所以要用四芯电缆) 。
七、使用维护
1、操作人员应严格遵守起重机操作规程,不允许超负荷使用。
2、不允许利用终端挡板作为通常停车方法。
3、捆紧重物的链条或钢绳必须有足够强度,并捆扎牢固可靠,绳或链绕过重物的锐角处宜加衬垫,套于起重机上的绳索必须在吊钩的中心位置不会滑脱出。
4、重物的升降和移动,应在垂直的情况下进行,禁止用电动葫芦来拖动或强行吊拔埋在地下的重物,也不允许转动起重机来进行拖动和撞击工作。
5、吊起重物上面严禁站人,下面严禁行人。
6、工作完毕或休息时,不应将重物悬吊在空中。
7、每隔半年,旋转机件部位要加润滑油一次。
8、根据使用后的情况,定期刷去机架横梁、回转部件横梁下翼面上(行走轨道处)积聚物,机架油漆可视剥落的情况补刷或重刷。